titelblatt.jpg

Dokumenta

Chao Wu - Architecture - Dokumenta Archiv Kassel (2014 / TU München) (Katalog Architektur)

 

 

 


Dokumenta Archiv

Kassel

2014

Kassel-Mitte (DE)

in Zusammenarbeit mit Yuichiro Yamada



 ̌

 
 

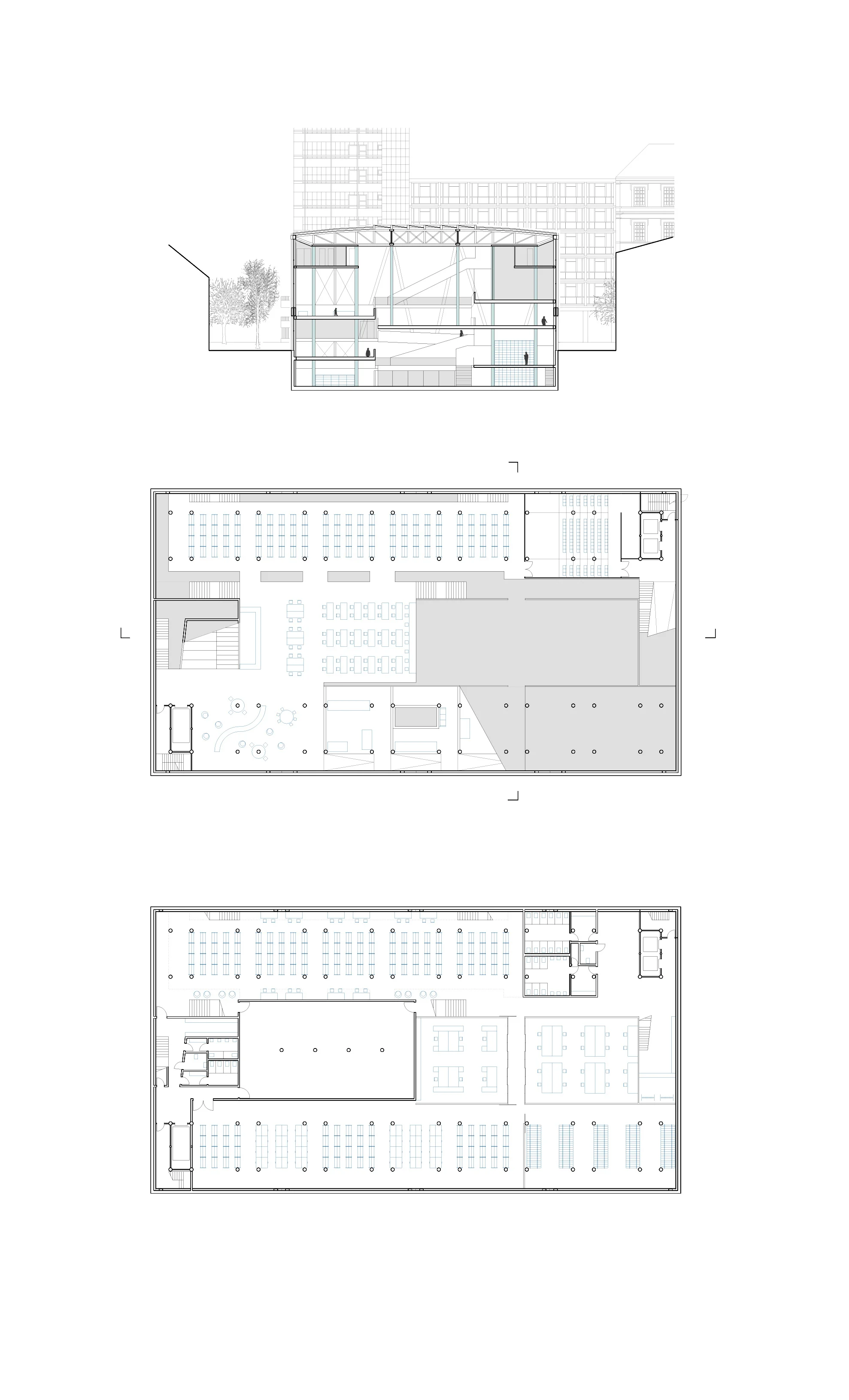
Der Neubau Documenta Archiv gegenüber Fridericianum soll "den Geist der Documenta über fünf Jahre tragen".

Im Bezuf auf kuratorischem Ansatz des Dokumentas hinterfragt das Projekt das herkömmliche Archiv als Speicherkammer, und sucht nach einer zeitgenössische Form des Archivs, die den Neubau an seiner prominente Stelle gerechtfertigt.

 
Chao_Wu_Dokumenta_01
 
Chao_Wu_Dokumenta_02
 
 
 
Chao_Wu_Dokumenta_16
 
Chao_Wu_Dokumenta_08
 
 
 

 

 
 
Chao_Wu_Dokumenta_03
 
33.jpg
 
Chao_Wu_Dokumenta_06
 
Chao_Wu_Dokumenta_07
 
 
 
Chao_Wu_Dokumenta_11
 
 
22.jpg
 
 
 
Chao_Wu_Dokumenta_12
 
Chao_Wu_Dokumenta_13